Stone Throw Cannabis Dispensary

Boston, MA

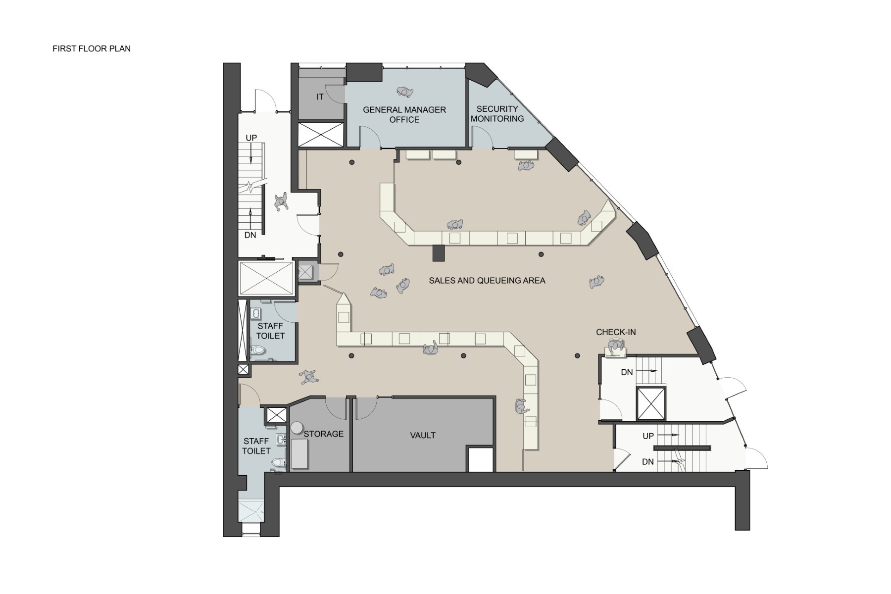
Stone Throw Cannabis Dispensary in Boston, MA. Reception Area, designed by Hardaway Sziabowski Architects.
Stone Throw Cannabis Dispensary in Boston, MA. Reception Area, designed by Hardaway Sziabowski Architects.
Stone Throw Cannabis Dispensary in Boston, MA. Reception Area, designed by Hardaway Sziabowski Architects.

Ground level cannabis dispensary in a busy section of downtown Boston. Administrative offices and support spaces were provided on the second floor.