Ideal Craft Cannabis

Uxbridge, MA

Ideal Craft Cannabis in Uxbridge, MA. Reception Area, designed by Hardaway Sziabowski Architects.
Ideal Craft Cannabis in Uxbridge, MA. Reception Area, designed by Hardaway Sziabowski Architects.
Ideal Craft Cannabis in Uxbridge, MA. Reception Area, designed by Hardaway Sziabowski Architects.

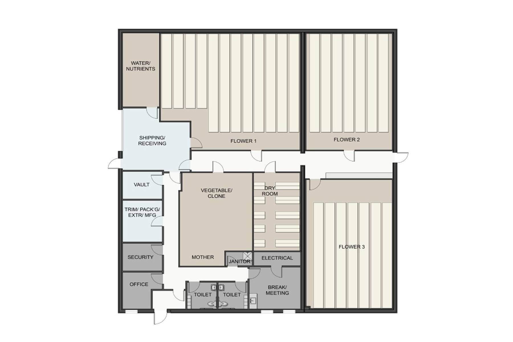
A 5,000 sf boutique cannabis cultivation and manufacturing facility.