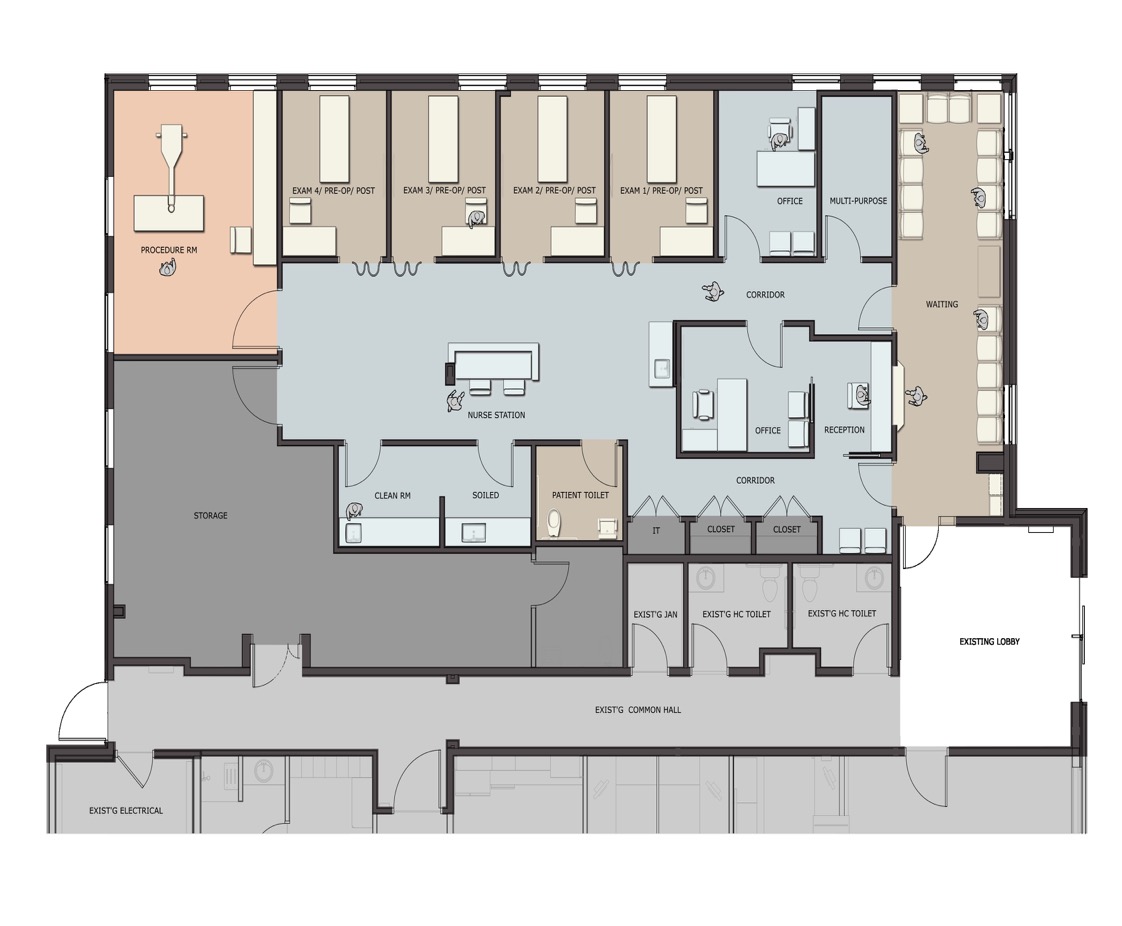
This small, highly personal facility offers a boutique experience for patients, with an intimate scale and thoughtful environment that emphasize comfort and individualized care.
- Size: 2,700 square feet
- Rooms: 1 Procedure Room
- Specialties: Pain Management
- Services: Architecture, Interior Design, Equipment Planning
