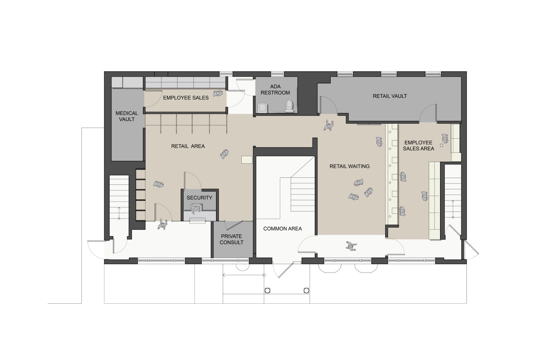
GRI Newton Dispensary

Newton, MA

GRI Newton Dispensary in Newton, MA. Reception Area, designed by Hardaway Sziabowski Architects.
GRI Newton Dispensary in Newton, MA. Reception Area, designed by Hardaway Sziabowski Architects.
GRI Newton Dispensary in Newton, MA. Reception Area, designed by Hardaway Sziabowski Architects.

HSA designed the 2,500sf phased renovation and expansion to this existing cannabis dispensary. Work included modifications to the existing retail space and expansion of both the retail and staff areas.