Glorious Cannabis Manufacturing

Uxbridge, MA

Glorious Cannabis Manufacturing in Uxbridge, MA. Reception Area, designed by Hardaway Sziabowski Architects.
Glorious Cannabis Manufacturing in Uxbridge, MA. Reception Area, designed by Hardaway Sziabowski Architects.
Glorious Cannabis Manufacturing in Uxbridge, MA. Reception Area, designed by Hardaway Sziabowski Architects.

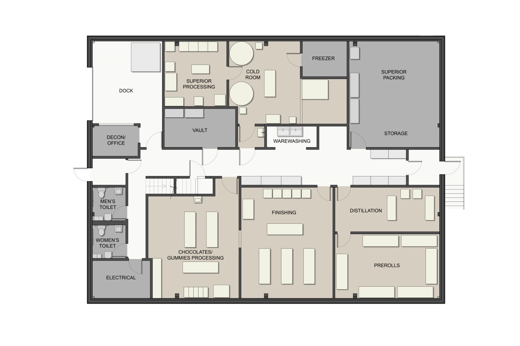
HSA designed this 5,000 sf cannabis product manufacturing facility located in an existing light industrial building.