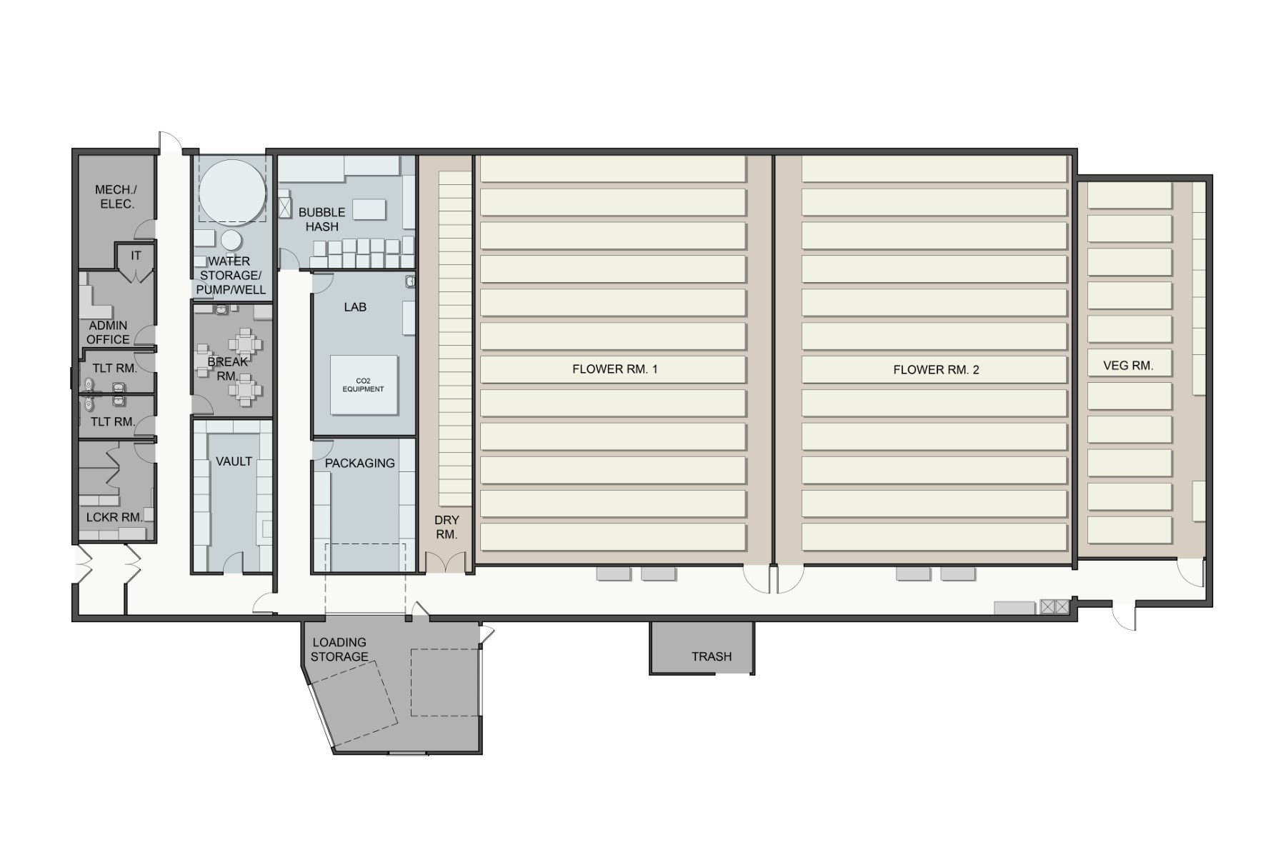
Coyote Cannabis Cultivation

Uxbridge, MA

Coyote Cannabis Cultivation in Uxbridge, MA. Reception Area, designed by Hardaway Sziabowski Architects.
Coyote Cannabis Cultivation in Uxbridge, MA. Reception Area, designed by Hardaway Sziabowski Architects.
Coyote Cannabis Cultivation in Uxbridge, MA. Reception Area, designed by Hardaway Sziabowski Architects.

An 11,000 sf cultivation and manufacturing facility fit-out within and existing light industrial building.